0

Fontenay-sous-Bois (94120) Appartement T2 35 m² - Fontenay-sous-Bois Village

Réf : 94 232 000 €

À Vendre : Appartement T2 35 m² / 46 m2 - Fontenay-sous-Bois Village

Description :
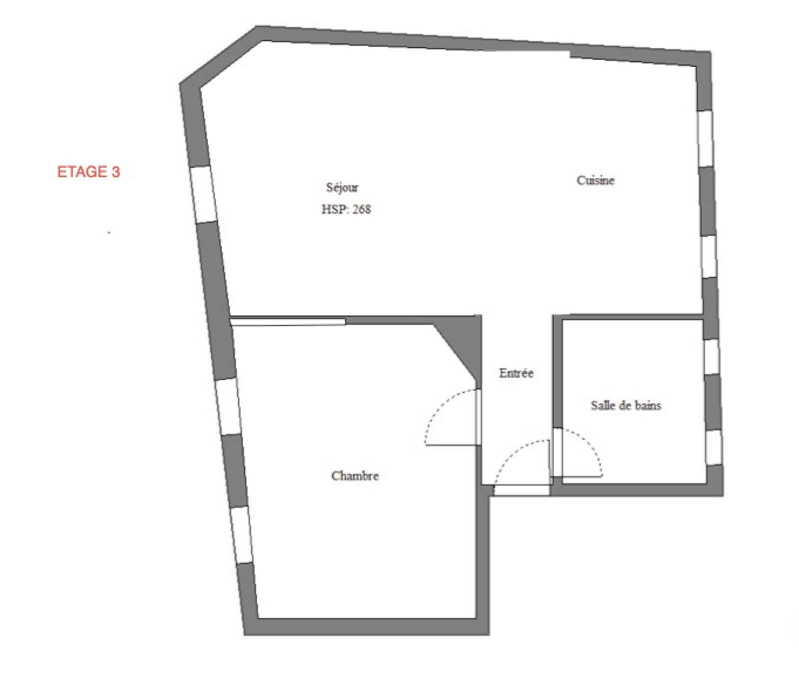
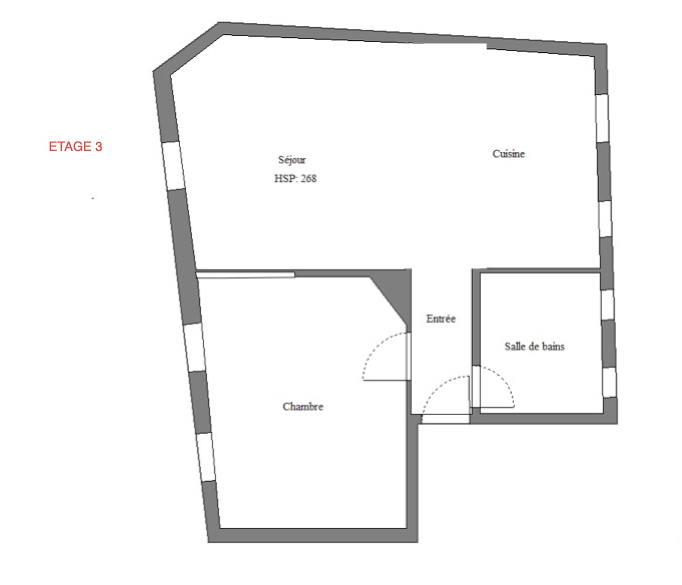
  • Appartement T2 de 35 m² surface carrez 46 m2 suface au sol situé au 3ème étage sur 3.
  • Appartement traversant, très dégagé, orienté EST - OUEST et très lumineux,
  • Idéalement situé rue Notre-Dame, à Fontenay-sous-Bois.
  • Proximité: RER A, Métro 1, Bois de Vincennes, marchés (Fontenay, Nogent sur Marne), commerces, parcs (parc floral, Château de Vincennes, Porte Jaune, Tremblay) etc
  • Travaux : possibilité de créer un duplex ou un triplex avec le 1er et le 3ème étage (en vente, plans identiques), intégration des parties communes (surface 6 m2 / étage + escalier)
  • INFORMATIONS SUPPLEMENTAIRES: Immeuble complet en vente avec commerce au RDC et trois appartements (+ cave attenant au commerce)
  • Vendu loué : fin du bail le 06/12/2026
  • Estimation du loyer : 900 €/mois (hors charges)
  • DPE : G GES ; C
  • Proximité écoles, collèges, Lycées
  • Coût annuel énergétique estimé : entre 1 950 € et 2 680 €.
  • Le prix du m² pour les appartements dans cette rue varie entre 6 657 € et 9 414 €, avec une moyenne de 7 677 €
  • Prix de vente 232 000 € soit 6 629 €/m2
Contactez-nous dès aujourd'hui pour organiser une visite et découvrir le potentiel de cet appartement !

Entrée 2.32

Salle d'eau 1.78 1.98

Séjour - Cuisine 18.91 6.80

Chambre 11.90 2.29

Superficie privative totale du bien : 34.91 m² - Superficie privative totale au sol : 45.98 m²


Les informations sur ri-sques auxquels ce bien est exposé sont disponibles sur Géorisques: http://georisques.gouv.fr

Le prix de vente total est de 232 000 euros

Contact Marc-Antoine : 07 81 03 49 02

TRAD_SIROCCO_Caracteristique Valeurs
Code postal 94120
Surface habitable (m²) 35 m²
Surface loi Carrez (m²) 35 m²
Nombre de chambre(s) 1
Nombre de pièces 2
Etage 3
Nombre de niveaux 3
Ascenseur NON
TRAD_SIROCCO_Caracteristique Valeurs
Nb de salle d'eau 1
Année de construction 1900
TRAD_SIROCCO_Caracteristique Valeurs
Copropriété OUI
Lot n° 4
nombre de lots 4
TRAD_SIROCCO_Caracteristique Valeurs
Prix de vente honoraires TTC inclus 232 000 €
DPE GES

Logement à consommation énergétique excessive : classe G

Montant estimé des dépenses annuelles d'énergie pour un usage standard est compris entre 1 950 € et 2 680 € . Prix moyens des énergies indexés sur les années 2021, 2022 et 2023 (abonnements compris).

Nos outils

Imprimer
Intéressé(e) par Ce bien ?

* Champ obligatoire

contacter l'agence

Les informations recueillies sur ce formulaire sont enregistrées dans un fichier informatisé par La Boite Immo agissant comme Sous-traitant du traitement pour la gestion de la clientèle/prospects de l'Agence / du Réseau qui reste Responsable du Traitement de vos Données personnelles.
La base légale du traitement repose sur l’intérêt légitime de l'Agence / du Réseau.
Elles sont conservées jusqu'à demande de suppression et sont destinées à l'Agence / au Réseau.
Conformément à la loi « informatique et libertés », vous pouvez exercer votre droit d'accès aux données vous concernant et les faire rectifier en contactant l'Agence / le Réseau.
Si vous estimez, après avoir contacté l'Agence / le Réseau, que vos droits « Informatique et Libertés » ne sont pas respectés, vous pouvez adresser une réclamation à la CNIL.
Nous vous informons de l’existence de la liste d'opposition au démarchage téléphonique « Bloctel », sur laquelle vous pouvez vous inscrire ici : https://www.bloctel.gouv.fr 
Dans le cadre de la protection des Données personnelles, nous vous invitons à ne pas inscrire de Données sensibles dans le champ de saisie libre
Ce site est protégé par reCAPTCHA, les Politiques de Confidentialité et les Conditions d'Utilisation de Google s'appliquent.

Ces biens peuvent aussi vous intéresser
Coup de coeur
Aix-en-Provence (13100)

AIX EN PCE CENTRE VILLE T2 DE 41M2

Prix en baisse
Éguilles (13510)

T3 70 M² EGUILLES CV- Ascenseur vue