0

Fontenay-sous-Bois (94120) FONTENAY SOUS BOIS en exclusivité Immeuble de 200 m2 - PHARMACIE + 3 APPARTEMENTS

Réf : 536
  • Immeuble de 4 lots avec une surface totale de 200 m2 :

    Rez-de-chaussée (RDC) :

    • Surface : 73 m² + cave 45 m2
    • Usage actuel : Pharmacie (la licence d’exploitation est attachée à l’immeuble)
    • DPE : F
    • Loyer actuel (avec étage 1) : 3 138 € (hors charges)
    • L'estimation du coût annuel énergétique : 5247
  • Étage 1 :

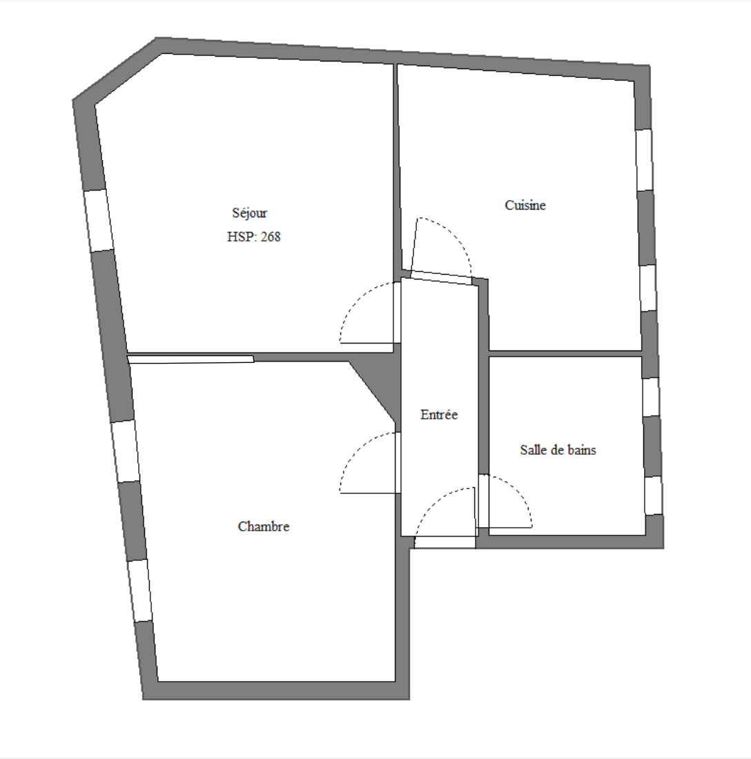
    • Surface : 44 m²
    • DPE : E
    • Inclus dans le loyer RDC.
    • L'estimation du coût annuel énergétique : 1400 - 1950
  • Étage 2 :

    • Surface : 46 m²
    • DPE : F
    • Loyer : estimé 1200 € (hors charges)
    • L'estimation du coût annuel énergétique : 1450 -1950
  • Étage 3 :

    • Surface : 35 m²
    • DPE : G
    • Loyer : estimé 1000 € (hors charges)
    • L'estimation du coût annuel énergétique : 1950 - 2680
  • Année de construction : 1930

    Localisation : Rue Notre Dame

    (devis travaux d'isolation disponible)

    L'estimation du montant du loyer pour l'immeuble est entièrement loué test de 5338 euros par mois.

    Taxe Foncière :4174 €

    L'estimation des coûts annuels : 9995 € par an Prix moyens des énergies indexés au 1er janvier 2021 ;

    Le prix de vente total est de 1 195 000 euros ; Les honoraires sont à la charge du vendeur ; Les informations sur les risques auxquels ce bien est exposé sont disponibles sur le site Géorisques : http//www.georisques.gouv.fr ;


TRAD_SIROCCO_Caracteristique Valeurs
Code postal 94120
Surface habitable (m²) 200 m²
Surface loi Carrez (m²) 200 m²
Nombre de niveaux 4
Ascenseur NON
TRAD_SIROCCO_Caracteristique Valeurs
Mode de chauffage Gaz de ville
Type de chauffage TRAD_TYPE_CHAUFF_CHAUDIERE
Format de chauffage Collectif
TRAD_SIROCCO_Caracteristique Valeurs
Copropriété OUI
Lot n° 4
nombre de lots 20
TRAD_SIROCCO_Caracteristique Valeurs
Les honoraires d'agence seront intégralement à la charge du vendeur  
Charges 833 €
DPE GES
DPE ANCIENNE VERSION

Nos outils

Imprimer